Description
Product details
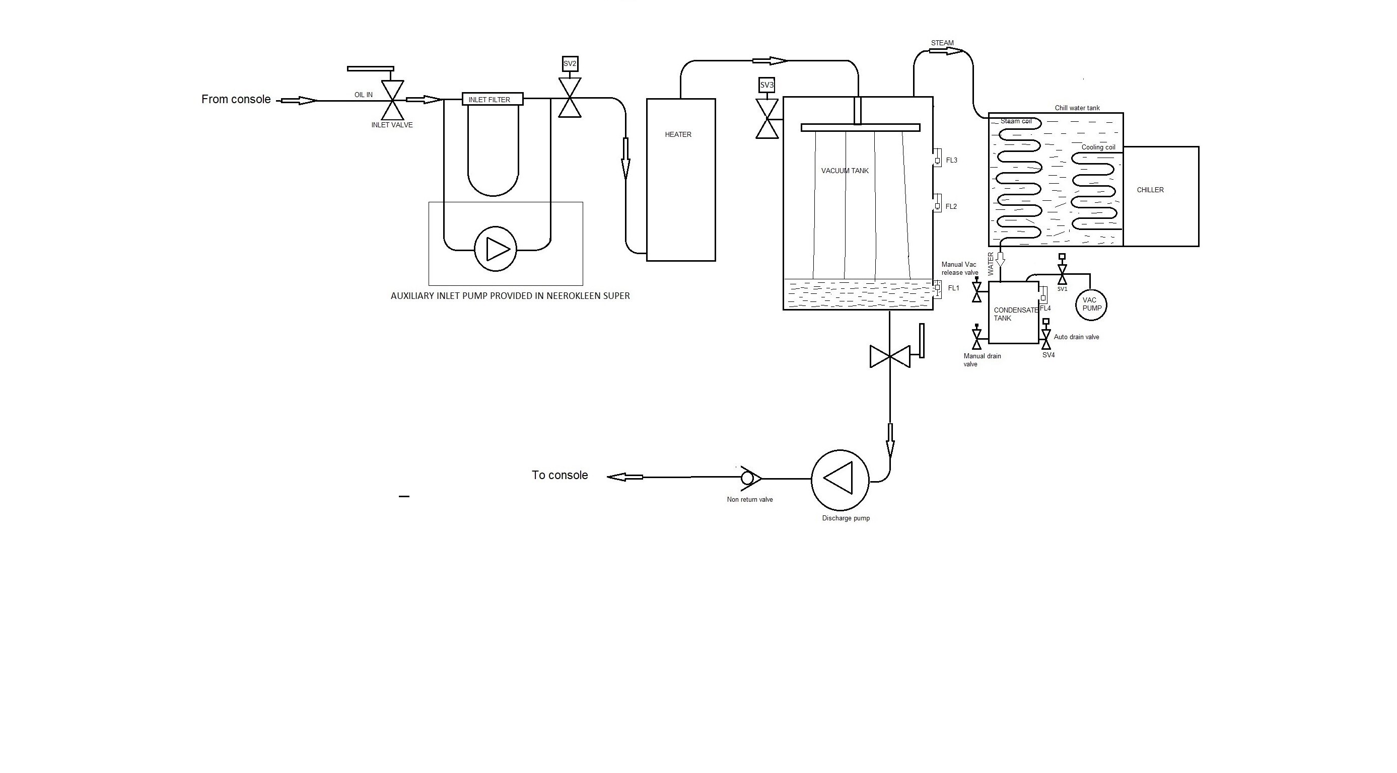
Our Vacuum dehydration machine Model Neerokleen available in different models is used to remove moisture , water and dissolved gases for hydraulic and lubricating oil using the principle of Vacuum dehydration. Principle of Operation. Oil is sucked under vacuum into a vacuum chamber through a heater which maintains the oil temperature between 50 to 60 deg Celsius. Moisture present in oil boils under vacuum and is led to a chiller/air cooled condenser and condensed into a condensing chamber. Dehydrated oil is pumped back to the system. A number of passes are required to complete dehydrate the oil








